36 Nandi Avenue, Frenchs Forest
House
Sold by Stuart Bath and Damien Dwyer. More quality homes needed to meet buyer demand
Sunny aspect with a stunning bush backdrop, this spacious and flexible family home delivers serene family living. Immaculately presented with stylish updates, vast picture windows and a stunning upstairs balcony creating a seamless connection with the leafy setting.
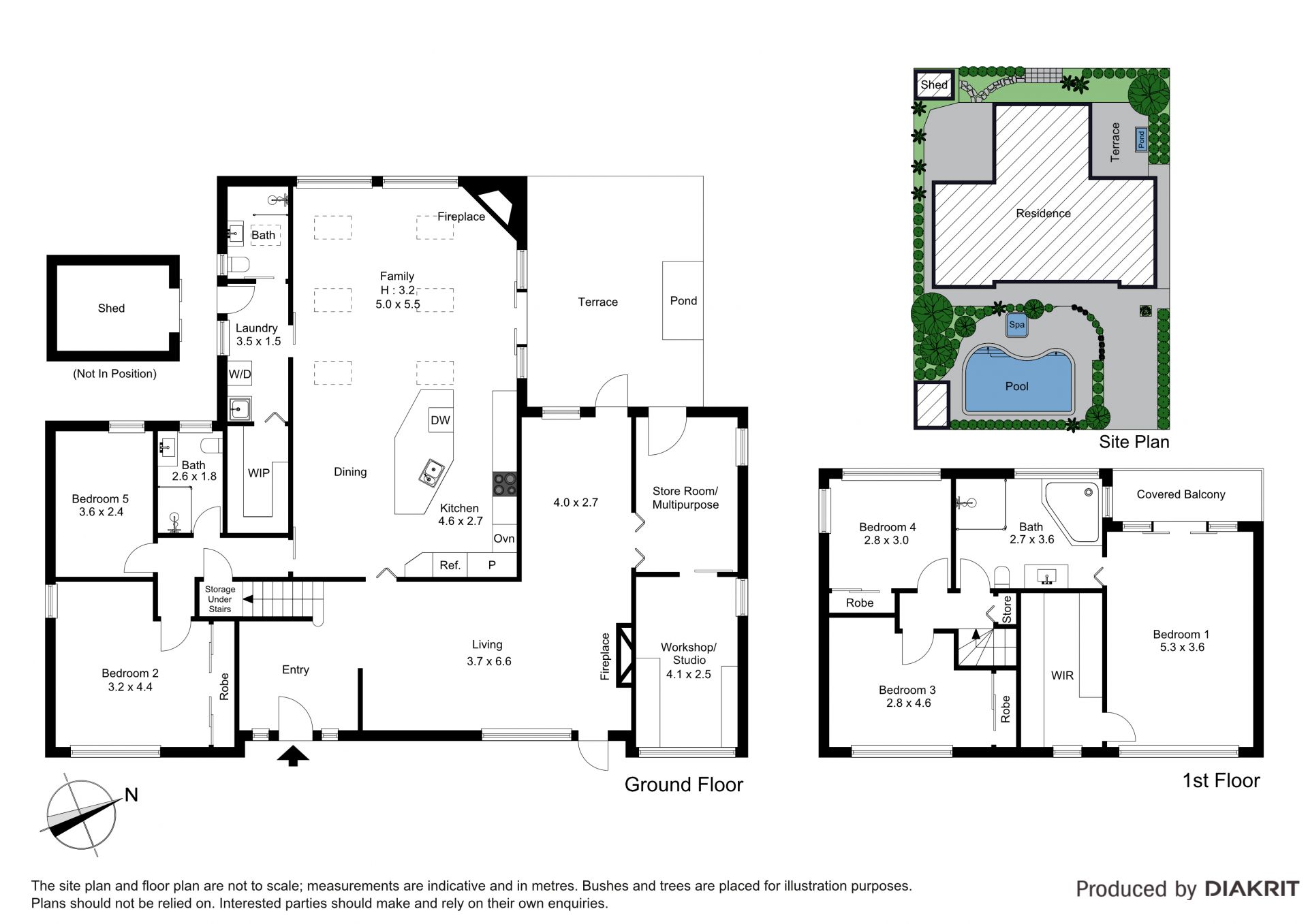
The flexibility of the floorplan is one of its highlights, evident in the spacious living room and open plan kitchen and family living space.
Family life is enhanced by the sun soaked salt water pool, lovely private terrace setting with bbq gas point.
Recent updates and designer finishes just add to the appeal.
Positioned on a level block and backing onto a stunning bush reserve in a quiet, family friendly street. Enjoy peace and tranquillity and yet still close to the City and Chatswood bus, local Schools, Skyline shops and close to the hospital and proposed new Town Centre.
Features Include:
* Spacious family home with 5 bedrooms, 2 studies plus 3 bathrooms
* High vaulted ceilings with feature skylights
* Very spacious kitchen and family living flowing to the outdoor areas
* Expansive picture windows enhance the lovely bush setting
* Quality finishes, split system air con, 2 Jet Master fireplaces.
* Large family-sized kitchen with Butler's Pantry, induction cook top and built in steam oven and ample stone bench space
* Lower level comprises all living spaces plus 2 bedrooms and 2 bathrooms
* Upper level includes 3 bedrooms plus full bathroom
* Stunning balcony off the main bedroom capturing the leafy outdoors
* Most bedrooms with built-in robes, some stylish renovated bathrooms
* Master bedroom with a walk-in robe and two way ensuite
* Ample storage with huge butler's pantry, separate store room plus workshop
* Generous grass area at the rear of the property
* A fantastic bush lifestyle for kids with easy access to the outdoor spaces
* Generous salt-water pool, separate spa plus pool house
* Solar Panels, Split system air-con, gas points plus loads of internal storage
*** Contract and Pest & Building Reports can all be downloaded from our website at skylinerealestate.com.au
The flexibility of the floorplan is one of its highlights, evident in the spacious living room and open plan kitchen and family living space.
Family life is enhanced by the sun soaked salt water pool, lovely private terrace setting with bbq gas point.
Recent updates and designer finishes just add to the appeal.
Positioned on a level block and backing onto a stunning bush reserve in a quiet, family friendly street. Enjoy peace and tranquillity and yet still close to the City and Chatswood bus, local Schools, Skyline shops and close to the hospital and proposed new Town Centre.
Features Include:
* Spacious family home with 5 bedrooms, 2 studies plus 3 bathrooms
* High vaulted ceilings with feature skylights
* Very spacious kitchen and family living flowing to the outdoor areas
* Expansive picture windows enhance the lovely bush setting
* Quality finishes, split system air con, 2 Jet Master fireplaces.
* Large family-sized kitchen with Butler's Pantry, induction cook top and built in steam oven and ample stone bench space
* Lower level comprises all living spaces plus 2 bedrooms and 2 bathrooms
* Upper level includes 3 bedrooms plus full bathroom
* Stunning balcony off the main bedroom capturing the leafy outdoors
* Most bedrooms with built-in robes, some stylish renovated bathrooms
* Master bedroom with a walk-in robe and two way ensuite
* Ample storage with huge butler's pantry, separate store room plus workshop
* Generous grass area at the rear of the property
* A fantastic bush lifestyle for kids with easy access to the outdoor spaces
* Generous salt-water pool, separate spa plus pool house
* Solar Panels, Split system air-con, gas points plus loads of internal storage
*** Contract and Pest & Building Reports can all be downloaded from our website at skylinerealestate.com.au
Sold
$ 2,455,000
- 5
- 3
- 2
556 sqm
