22 Greendale Avenue, Frenchs Forest
House
SOLD By Stuart Bath - Another Prestige Home Required
Positioned to take full advantage of the level 783sqm block, this exceptional family residence is tailored to those who seek an easy lifestyle and entertaining family and friends.
Designed with meticulous attention to detail, this generously proportioned home effortlessly embraces its leafy setting and sun-drenched orientation.
A variety of spacious living areas set this property apart, making it a haven for families seeking both luxury and convenience. This unique offering, coming to the market for the first time in over twenty years, provides serene privacy, with a focus on quiet and easy living; yet still close to shops, local primary & high schools - a rare gem for the discerning family.
Features
- An open-plan living and dining area with large windows and ample natural light.
- A gourmet kitchen, boasting induction cooktop, oversize St George oven, Corian benchtops and a large welcoming breakfast island with inlaid Jennair bbq grill.
- A huge sunlit family living area with seamless access to the stunning outdoor spaces.
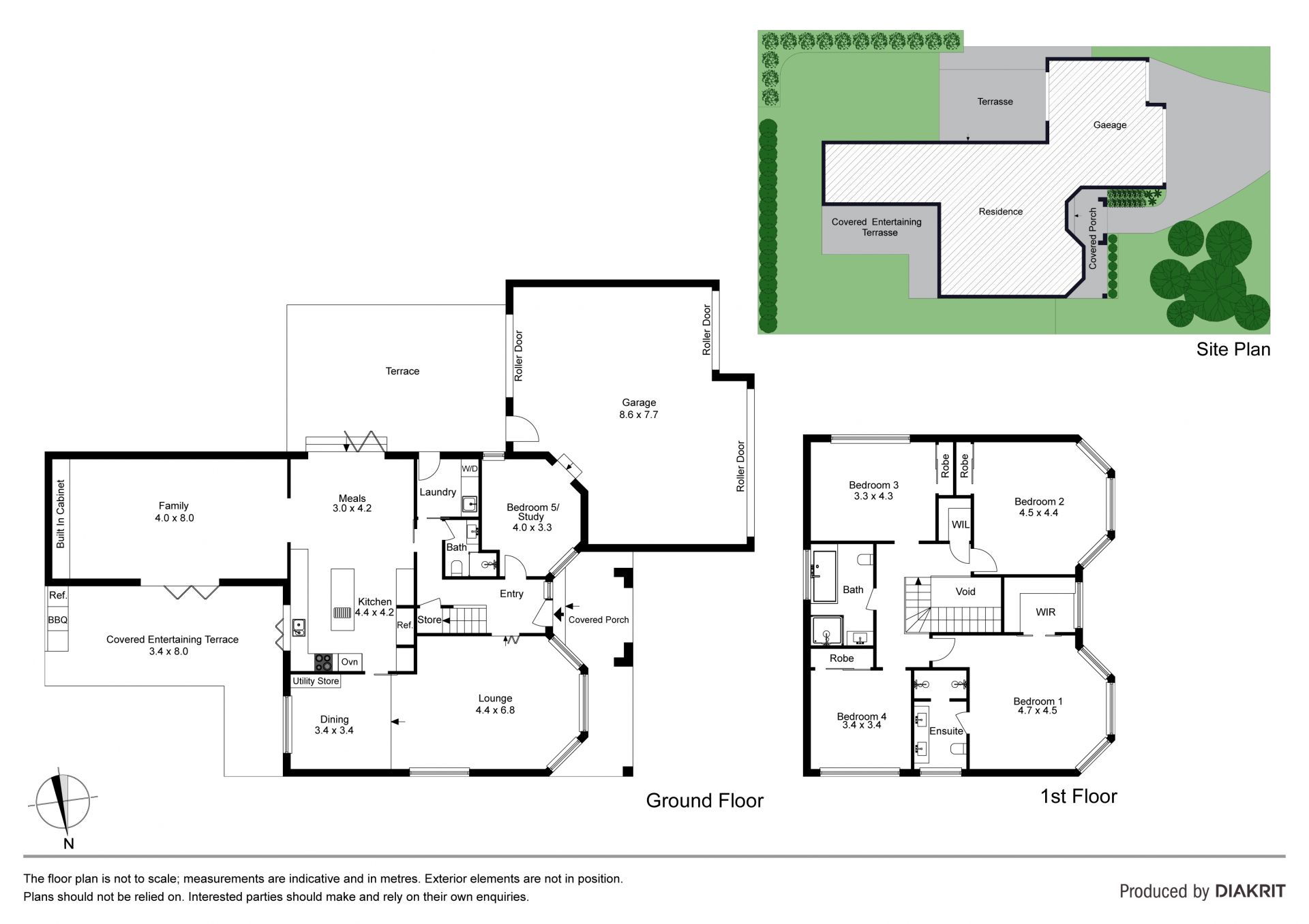
- Four generously proportioned double bedrooms, all with built-in robes complemented by a home office or a fifth bedroom.
- The spacious master suite, offering large ensuite with underfloor heating plus walk-in closet.
- All three bathrooms are fully tiled and modernized.
- Zoned and ducted reverse cycle air conditioning, ensuring year-round comfort plus 2 x split system air-cons.
- Ample storage throughout the residence.
- Security Alarm with cameras, fully integrated C-bus communication system, ducted vacuum plus much more.
- A fully lined, undercover entertaining terrace, complete with built-in bbq and flowing to the easily maintained level lawns and gardens.
- Huge triple car garaging, ensuring ample space for vehicles, with auto door and internal access.
- A leisurely stroll to bus services with play park in the street
- Convenient proximity to local primary, high and private schooling
- Moments away from Glenrose & Forest Way shopping centres and local cafes and services - all designed to help make life easier
** Unable to inspect in person - call us for a video / facetime inspection anytime **
Designed with meticulous attention to detail, this generously proportioned home effortlessly embraces its leafy setting and sun-drenched orientation.
A variety of spacious living areas set this property apart, making it a haven for families seeking both luxury and convenience. This unique offering, coming to the market for the first time in over twenty years, provides serene privacy, with a focus on quiet and easy living; yet still close to shops, local primary & high schools - a rare gem for the discerning family.
Features
- An open-plan living and dining area with large windows and ample natural light.
- A gourmet kitchen, boasting induction cooktop, oversize St George oven, Corian benchtops and a large welcoming breakfast island with inlaid Jennair bbq grill.
- A huge sunlit family living area with seamless access to the stunning outdoor spaces.
- Four generously proportioned double bedrooms, all with built-in robes complemented by a home office or a fifth bedroom.
- The spacious master suite, offering large ensuite with underfloor heating plus walk-in closet.
- All three bathrooms are fully tiled and modernized.
- Zoned and ducted reverse cycle air conditioning, ensuring year-round comfort plus 2 x split system air-cons.
- Ample storage throughout the residence.
- Security Alarm with cameras, fully integrated C-bus communication system, ducted vacuum plus much more.
- A fully lined, undercover entertaining terrace, complete with built-in bbq and flowing to the easily maintained level lawns and gardens.
- Huge triple car garaging, ensuring ample space for vehicles, with auto door and internal access.
- A leisurely stroll to bus services with play park in the street
- Convenient proximity to local primary, high and private schooling
- Moments away from Glenrose & Forest Way shopping centres and local cafes and services - all designed to help make life easier
** Unable to inspect in person - call us for a video / facetime inspection anytime **
