7 Romford Road, Frenchs Forest
House
SOLD By Stuart Bath - Another Home Wanted in This Area
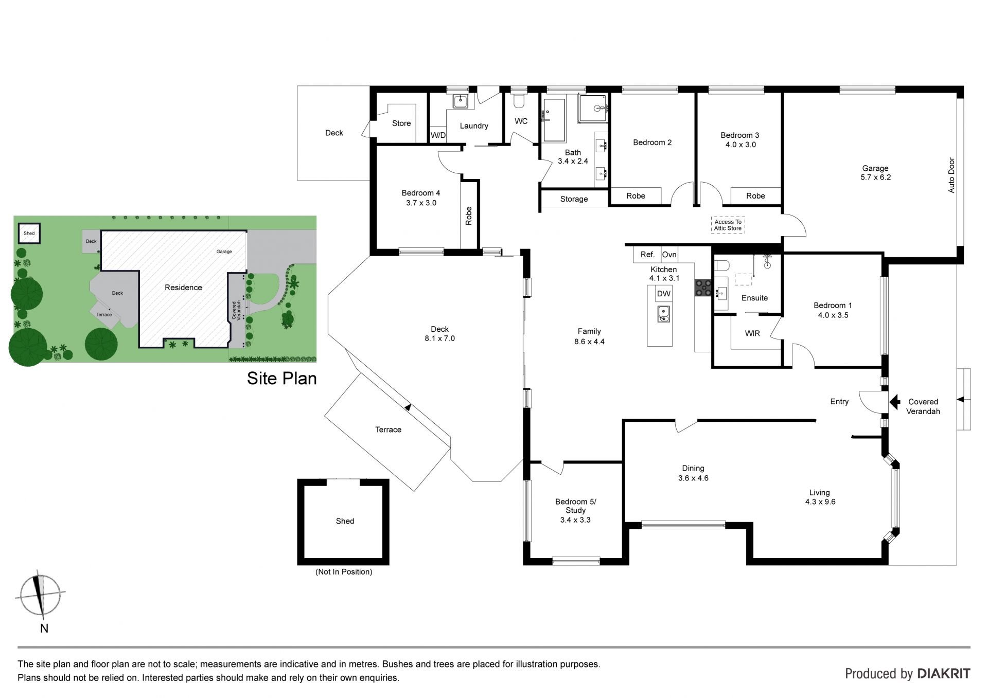
Positioned on a large level parcel of land of 765sqm, this amazing family home offers a wonderful opportunity for young families eager to secure a home close to city transport, primary and high schools, local shops, the new hospital and proposed town centre.
A cherished colonial-style residence spread across a remarkably spacious single-level; it comes to the market for the first time in over 25 years.
Bathed in natural light with a versatile layout offering a superb selection of entertaining zones and up to five bedrooms, this is a property designed to adapt to your family's growing needs.
Highlighted by spacious open living spaces, a mix of plush carpets, tiles and large timber decking.
Large picture windows bring the greenery from outside in.
Ready for new homeowners to move straight in as all the hard work and renovations have been done.
Features
• Very expansive lounge and dining area with lovely bay window
• Huge casual family area leading out through double glass doors to the large level and private backyard - 765sqm Block
• Gourmet kitchen with stone benchtops, Miele Induction cooktop and Pyrolytic Oven, Miele dishwasher and abundant cabinetry
• Manicured gardens with timber decked entertaining spaces and large child-friendly level lawns - ample room for a pool
• All bedrooms are double sized with built - in robes. Master room has ensuite and walk - in robe
• Large Home office / Study or 5th bedroom
• Internal access to the double garage plus huge loft storage in the roof cavity
• City / Chatswood / Manly bus stops nearby
• Tightly held, fully renovated family home ready for new owners to just move in and enjoy
* Contract and Pest & Building Report available on our website at www.skylinerealestate.com.au using a desktop or laptop computer.
A cherished colonial-style residence spread across a remarkably spacious single-level; it comes to the market for the first time in over 25 years.
Bathed in natural light with a versatile layout offering a superb selection of entertaining zones and up to five bedrooms, this is a property designed to adapt to your family's growing needs.
Highlighted by spacious open living spaces, a mix of plush carpets, tiles and large timber decking.
Large picture windows bring the greenery from outside in.
Ready for new homeowners to move straight in as all the hard work and renovations have been done.
Features
• Very expansive lounge and dining area with lovely bay window
• Huge casual family area leading out through double glass doors to the large level and private backyard - 765sqm Block
• Gourmet kitchen with stone benchtops, Miele Induction cooktop and Pyrolytic Oven, Miele dishwasher and abundant cabinetry
• Manicured gardens with timber decked entertaining spaces and large child-friendly level lawns - ample room for a pool
• All bedrooms are double sized with built - in robes. Master room has ensuite and walk - in robe
• Large Home office / Study or 5th bedroom
• Internal access to the double garage plus huge loft storage in the roof cavity
• City / Chatswood / Manly bus stops nearby
• Tightly held, fully renovated family home ready for new owners to just move in and enjoy
* Contract and Pest & Building Report available on our website at www.skylinerealestate.com.au using a desktop or laptop computer.
Sold
$ 2,500,000
- 5
- 2
- 4
765 sqm
