28 Myra Street, Frenchs Forest
House
Sold by Damien Dwyer before Auction
Offered to the market for the first time by the original owners 28 Myra Street presents as the perfect home for a young family looking to secure a great property, in an exceptional location with terrific views and be able to add their own touch and value to the home.
Recently rejuvenated interiors throughout, this solid brick, 3 bedroom home is located in one of the most desirable pockets of Frenchs Forest. Its peaceful and private yet ultra-convenient being in close proximity to many of the areas amenities including schools, shops, sporting fields, medical practitioners, Northern Beaches hospital, the Forest hotel and Transport,
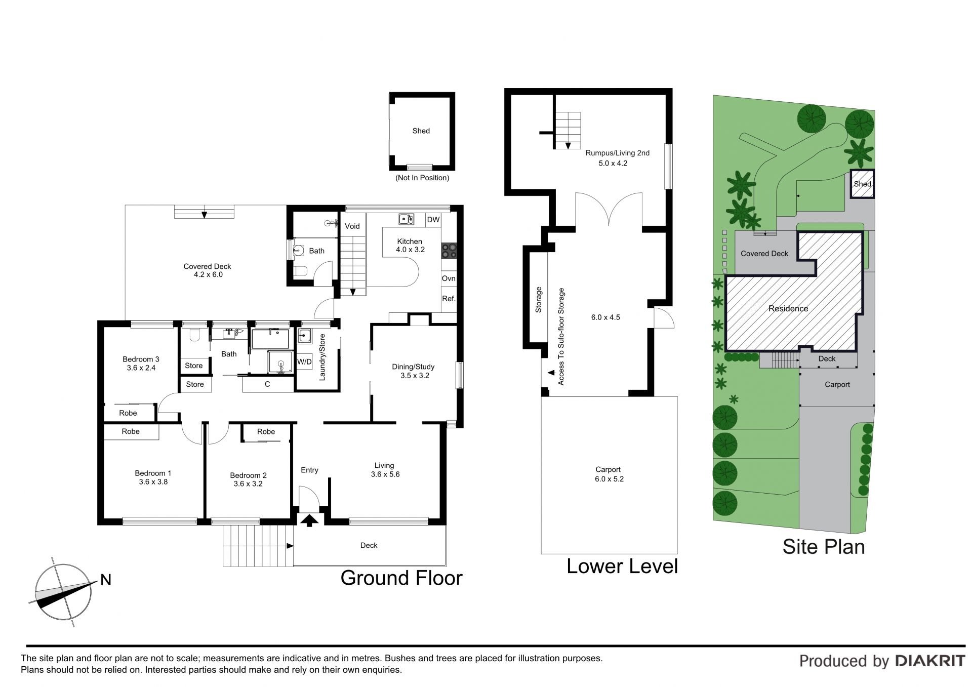
The home offers a flexible floor plan with a rumpus room downstairs that could be converted into a 4th bedroom / office space or utilize as a second family living area. It can be whatever you need it to be and there is ample opportunity to further renovate / extend and add value down the track.
The living space is light and bright soaking up the East / North / East aspect from the front of the property capturing some very nice views across the Oxford Falls valley.
• Modern downlights throughout the home.
• Timber floorboards throughout the living area.
• All bedrooms are equipped with built in wardrobes and new carpet.
• Reverse cycle air conditioning in the living area and a bedroom.
• Gas cooking and heating.
• Near new gas water heating.
• Large family bathroom and fully renovated 2nd bathroom.
• Lovely terraced grass lawn as you enter the home.
• Lock up garage plus a double undercover carport providing ample space for cars, boats, caravans or trailers.
• Outside covered entertaining deck off the kitchen.
• Large under house storage area plus a shed.
• Quick settlement on offer, 28 Myra St is ready to move straight in.
With a little vision and creative spirit you could add value and enhance the home by carrying out some of these ideas. ( STCA )
- Create an open plan living space by taking out the wall separating the living area and kitchen dining space. The views and natural light is sure to impress.
- Render over the brickwork and add some outdoor lighting for modern street appeal.
- Add a second storey creating extra living space and further enhance the view.
Skyline Real Estate are very excited to be able to present 28 Myra St to the market and we can't wait to see you at the open homes and feel free to contact us if you would like a private inspection
Recently rejuvenated interiors throughout, this solid brick, 3 bedroom home is located in one of the most desirable pockets of Frenchs Forest. Its peaceful and private yet ultra-convenient being in close proximity to many of the areas amenities including schools, shops, sporting fields, medical practitioners, Northern Beaches hospital, the Forest hotel and Transport,
The home offers a flexible floor plan with a rumpus room downstairs that could be converted into a 4th bedroom / office space or utilize as a second family living area. It can be whatever you need it to be and there is ample opportunity to further renovate / extend and add value down the track.
The living space is light and bright soaking up the East / North / East aspect from the front of the property capturing some very nice views across the Oxford Falls valley.
• Modern downlights throughout the home.
• Timber floorboards throughout the living area.
• All bedrooms are equipped with built in wardrobes and new carpet.
• Reverse cycle air conditioning in the living area and a bedroom.
• Gas cooking and heating.
• Near new gas water heating.
• Large family bathroom and fully renovated 2nd bathroom.
• Lovely terraced grass lawn as you enter the home.
• Lock up garage plus a double undercover carport providing ample space for cars, boats, caravans or trailers.
• Outside covered entertaining deck off the kitchen.
• Large under house storage area plus a shed.
• Quick settlement on offer, 28 Myra St is ready to move straight in.
With a little vision and creative spirit you could add value and enhance the home by carrying out some of these ideas. ( STCA )
- Create an open plan living space by taking out the wall separating the living area and kitchen dining space. The views and natural light is sure to impress.
- Render over the brickwork and add some outdoor lighting for modern street appeal.
- Add a second storey creating extra living space and further enhance the view.
Skyline Real Estate are very excited to be able to present 28 Myra St to the market and we can't wait to see you at the open homes and feel free to contact us if you would like a private inspection
