741 Warringah Road, Forestville
House
SOLD By Stuart Bath - Another Home Required for Buyers
Located in the heart of Forestville this is a fantastic investment opportunity.
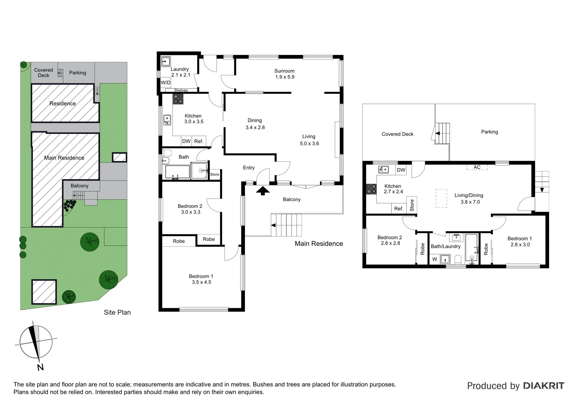
House plus separate approved Granny Flat on corner block within easy walking distance to Forestville Shops, City Bus and local schools.
Offered with a DA approval for a 9 bedroom boarding house.
The house features 2/3 bedrooms, kitchen, full bathroom, laundry plus living spaces and parking.
The granny flat is modern with 2 bedrooms, bathroom, living space, kitchen, laundry plus separate parking.
This is a fantastic investment opportunity with the potential rents at $900 - $950pw + $740 - $760pw for a total of $1,640 - $1,710pw or approx. $87,100 per annum.
An excellent opportunity for a home plus income, dual family living or just as an investment for the future.
Alternatively, knock down and build a 9 bedroom boarding house where rooms are in strong demand at present.
This is an excellent property with a multitude of options for the astute investor.
* Auction On Site; if not sold prior
Link to Boarding House Plans - https://eservices.northernbeaches.nsw.gov.au/ePlanning/live/Public/XC.Track/SearchProperty.aspx?id=138933
House plus separate approved Granny Flat on corner block within easy walking distance to Forestville Shops, City Bus and local schools.
Offered with a DA approval for a 9 bedroom boarding house.
The house features 2/3 bedrooms, kitchen, full bathroom, laundry plus living spaces and parking.
The granny flat is modern with 2 bedrooms, bathroom, living space, kitchen, laundry plus separate parking.
This is a fantastic investment opportunity with the potential rents at $900 - $950pw + $740 - $760pw for a total of $1,640 - $1,710pw or approx. $87,100 per annum.
An excellent opportunity for a home plus income, dual family living or just as an investment for the future.
Alternatively, knock down and build a 9 bedroom boarding house where rooms are in strong demand at present.
This is an excellent property with a multitude of options for the astute investor.
* Auction On Site; if not sold prior
Link to Boarding House Plans - https://eservices.northernbeaches.nsw.gov.au/ePlanning/live/Public/XC.Track/SearchProperty.aspx?id=138933
