19 Sir Thomas Mitchell Drive, Davidson
House
SOLD By Stuart Bath - Another Home Wanted in this Area
Set in one of Davidson's most sought-after and family-friendly streets, this expansive residence offers the perfect blend of space, comfort, and potential.
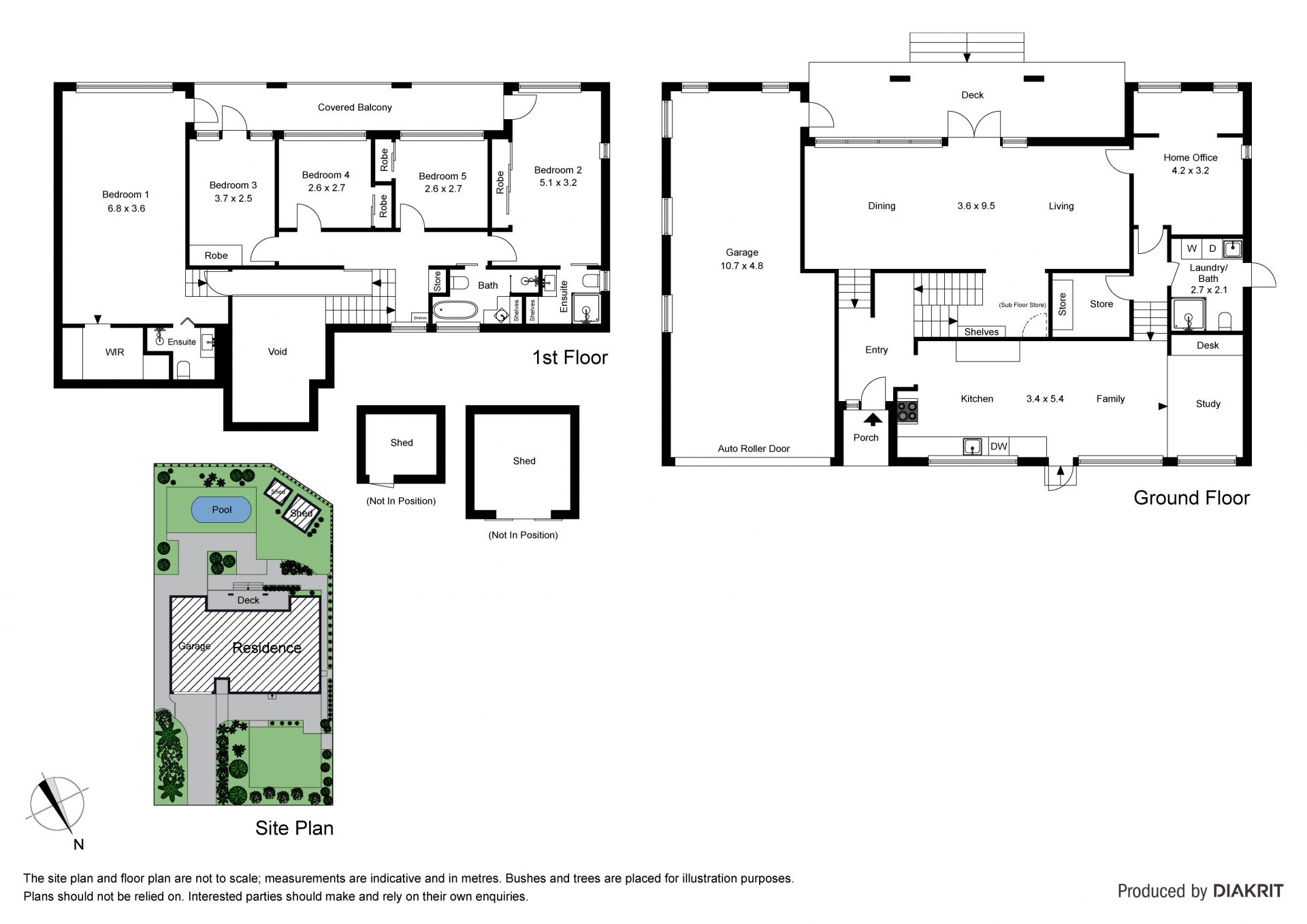
With five generous bedrooms, four bathrooms, two studies, and a large double garage, there's room for everyone – and then some!
The home features an open plan kitchen, meals and family area designed for modern living and overlooking the front courtyard.
The huge living room opens out to the private rear yard - Kids and pets will love the grassy lawn, while the above-ground pool promises endless summer fun.
Upstairs boasts two oversized bedrooms with ensuites, each offering sweeping city views – the perfect retreat at the end of the day.
While the home could benefit from some cosmetic updates, its incredible size and location make it a golden opportunity to renovate and create your dream family haven.
Whether you're upsizing, investing, or planning for the future, this is a rare chance to secure a home in a tightly held and desirable pocket of Davidson.
Key Features:
• 5 spacious bedrooms, 4 bathrooms, 2 studies
• 2 master-style bedrooms with ensuites
• Open plan kitchen and living spaces
• Large backyard with lawn and above-ground pool
• Double garage with internal access
• City views from every upstairs room
• Superb location in a quiet, family-friendly street
Your family's next chapter starts here. Don't miss it!
** Draft Sale Contract and Pest & Building Report are available for free download directly from our website at skylinerealestate.com.au
With five generous bedrooms, four bathrooms, two studies, and a large double garage, there's room for everyone – and then some!
The home features an open plan kitchen, meals and family area designed for modern living and overlooking the front courtyard.
The huge living room opens out to the private rear yard - Kids and pets will love the grassy lawn, while the above-ground pool promises endless summer fun.
Upstairs boasts two oversized bedrooms with ensuites, each offering sweeping city views – the perfect retreat at the end of the day.
While the home could benefit from some cosmetic updates, its incredible size and location make it a golden opportunity to renovate and create your dream family haven.
Whether you're upsizing, investing, or planning for the future, this is a rare chance to secure a home in a tightly held and desirable pocket of Davidson.
Key Features:
• 5 spacious bedrooms, 4 bathrooms, 2 studies
• 2 master-style bedrooms with ensuites
• Open plan kitchen and living spaces
• Large backyard with lawn and above-ground pool
• Double garage with internal access
• City views from every upstairs room
• Superb location in a quiet, family-friendly street
Your family's next chapter starts here. Don't miss it!
** Draft Sale Contract and Pest & Building Report are available for free download directly from our website at skylinerealestate.com.au
